Espace propriétaire
fr

Votre recherche

Amiens (80000)

2 pièces - 56,50 m²

T2-Rez de jardin

212 000 €
Ref : 0299
Découvrir le bien

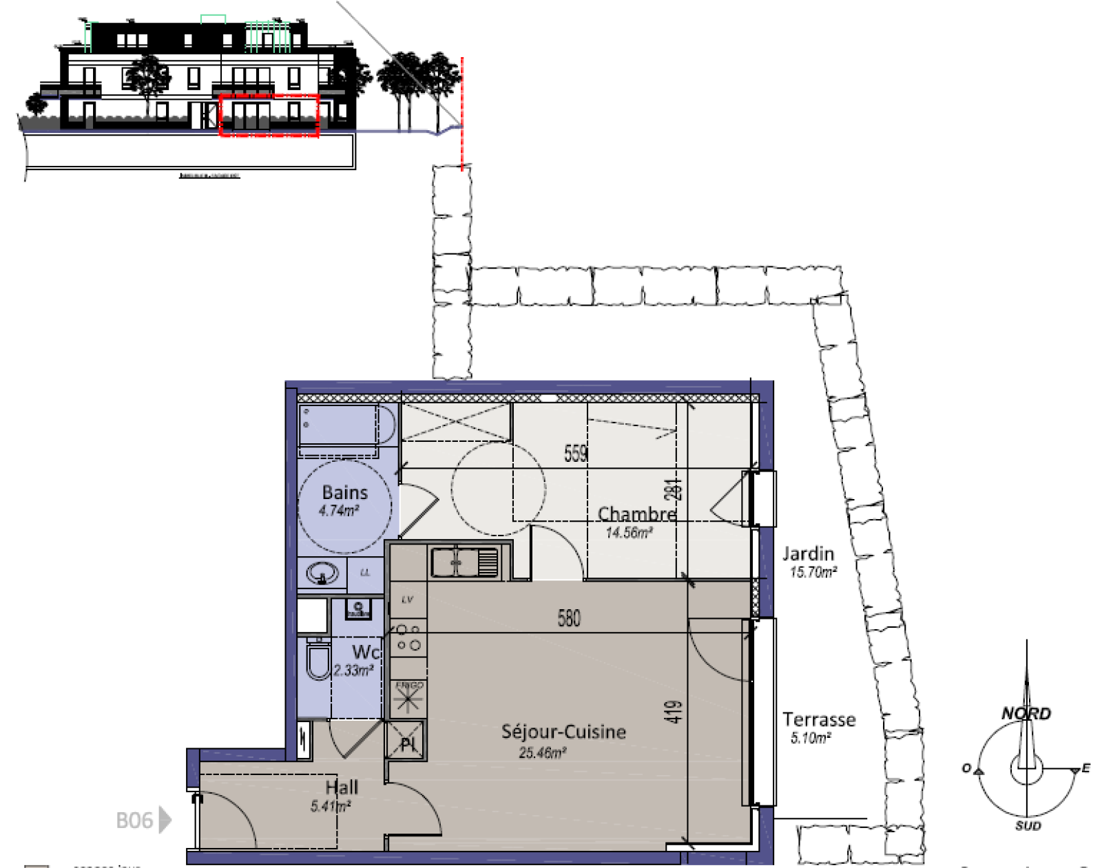
HBX EXPERT IMMO, seule agence à vous proposer sur Amiens, le programme immobilier neuf situé route de Rouen à Amiens. Cet ensemble est construit dans un environnement arboré et sans vis-à-vis (hors ZAC).

 

Nous avons sélectionné pour vous cet appartement de 52.50 m² situé en rez de jardin de la résidence bénéficiant d’une terrasse et d’un extérieur de 15m².

 

Cet appartement bénéficie :

-             D’un hall de 5.41m²

-             Séjour de 25m² accès jardin et terrasse de 5m²

-             Une grande chambre de 14.56m²

-             Salle de bain

-             Wc séparé

-             Cuisine en option

Cet appartement est livré avec une place de parking en sous-sol.

 

Frais notarié réduit.

 

Programme éligible au PINEL-Incitation fiscale

 

Contacter Stéphanie CHAIDRON au 06*38*78*13*39

TRAD_ZEPHYR_Caracteristique TRAD_ZEPHYR_Valeurs
Code postal 80000
Surface loi Carrez (m²) 52,50 m²
Nombre de chambre(s) 1
Nombre de pièces 2
TRAD_ZEPHYR_Caracteristique TRAD_ZEPHYR_Valeurs
Nb de salle de bains 1
Cuisine Sans
Mode de chauffage Gaz de ville
Type de chauffage Chaudiere
Format de chauffage Individuel
Terrasse OUI
TRAD_ZEPHYR_Caracteristique TRAD_ZEPHYR_Valeurs
Copropriété OUI
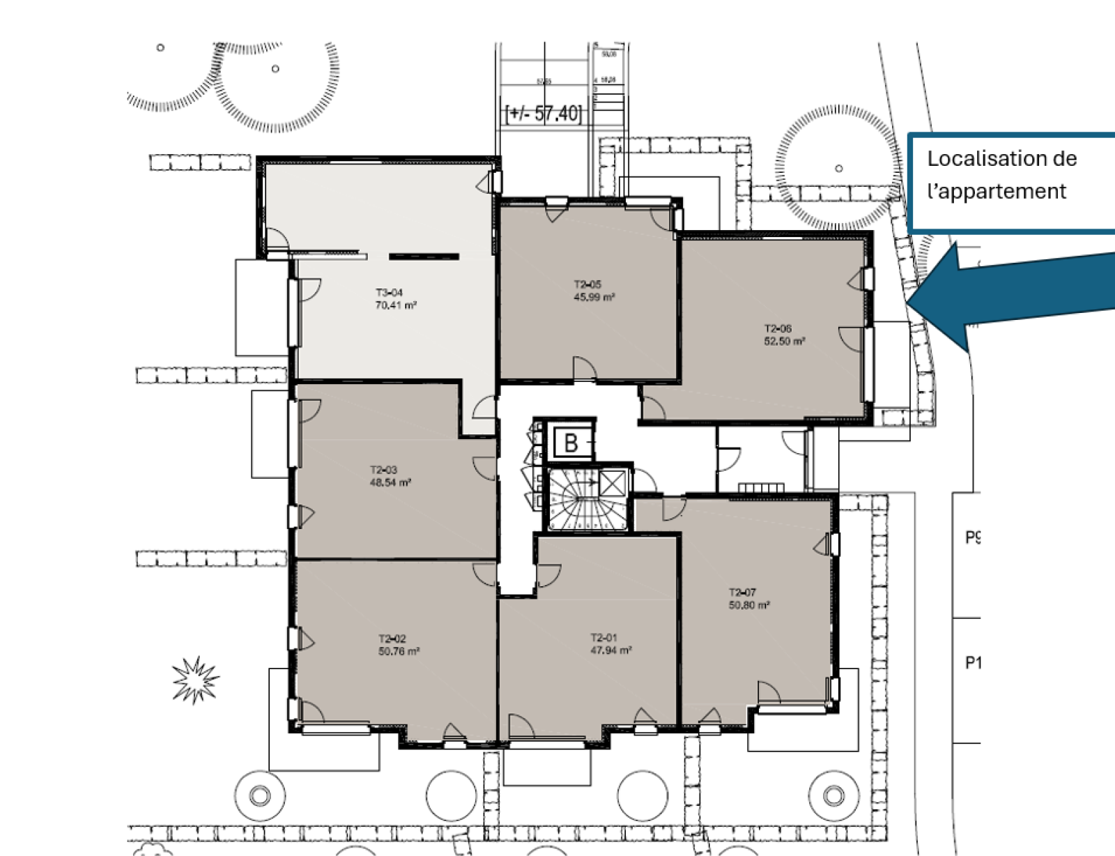
Lot n° B06
nombre de lots 51
TRAD_ZEPHYR_Caracteristique TRAD_ZEPHYR_Valeurs
Prix de vente 212 000 €
Les honoraires d'agence seront intégralement à la charge du vendeur  
DPE GES
Contacter pour ce bien
L'agence
Téléphone 06 42 36 63 70
Adresse
359 Boulevard de Beauvillé, 80000 AMIENS 80000 Amiens

* Champ obligatoire

Les informations recueillies sur ce formulaire sont enregistrées dans un fichier informatisé par La Boite Immo agissant comme Sous-traitant du traitement pour la gestion de la clientèle/prospects de l'Agence / du Réseau qui reste Responsable du Traitement de vos Données personnelles. La base légale du traitement repose sur l'intérêt légitime de l'Agence / du Réseau. Elles sont conservées jusqu'à demande de suppression et sont destinées à l'Agence / au Réseau. Conformément à la loi « informatique et libertés », vous disposez des droits d’accès, de rectification, d’effacement, d’opposition, de limitation et de portabilité de vos données. Vous pouvez retirer votre consentement à tout moment en contactant directement l’Agence / Le Réseau. Consultez le site https://cnil.fr/fr pour plus d’informations sur vos droits. Si vous estimez, après avoir contacté l'Agence / le Réseau, que vos droits « Informatique et Libertés » ne sont pas respectés, vous pouvez adresser une réclamation à la CNIL. Nous vous informons de l’existence de la liste d'opposition au démarchage téléphonique « Bloctel », sur laquelle vous pouvez vous inscrire ici : https://www.bloctel.gouv.fr Dans le cadre de la protection des Données personnelles, nous vous invitons à ne pas inscrire de Données sensibles dans le champ de saisie libre.
Ce site est protégé par reCAPTCHA, les Politiques de Confidentialité et les Conditions d'Utilisation de Google s'appliquent.

Découvrir nos outils